2017-03-03 16:40:15 | 人围观 | 评论:
一个真实机床产品的控制线路往往因为实现的功能较多而比较繁琐复杂,因此在绘制机床产品的电气原理图时,采用了坐标划分的方式,使电路图更加易读。
1、图线布置
控制线路图中各电器的图形符号按纵向排列,连接线则成垂直布置,类似项目尽量横向对齐(如各触点横向对齐,各线圈横向对齐),垂直布置的各电器元件、图线在图上的位置可用图幅分区的列的代号表示。
2、图幅分区
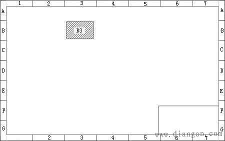
绘制电气原理图时,将整个图样的幅面进行分区,把图面相互垂直的两边各自加以等分,每一分区长度为25~75mm,然后从图样的左上角开始,在图样周边的竖边方向按行用大写字母分区编号,横边方向按列用数字分区编号,图中某个位置的代号用该区域的字母和数字组合起来表示。图幅分区后,各电器元件或连接线在图上的位置表示方法有三种,分别是:用行代号(字母)表示,如A、B;用列代号(数字)表示,如3、4;用区代号表示,区代号为字母和数字的组合,字母在左,数字在右,如B3,见图。

在生产实际中,很多电路原理图都采用列标记,只有复杂的电路采用区代号标记,且为了区分控制线路各部分所起的不同作用,常将某段线路所在列的上端列代号省略,代之以该段线路的用途功能,而只在下端标明列代号。

3、简化的位置代号标记方法
在机床电气控制各元件中,除了电动机以外,接触器和继电器使用最为频繁,而在原理图中,其主触点、辅助触点、线圈等通常不是画在同一处的。在以后的学习中,我们使用不同颜色标记来方便寻找。而在机床产品的出厂电气原理图中,则采用了简化表格方法来标记位于原理图不同位置处的同一接触器(或继电器)的不同功能部分,在此我们作简要介绍。
简化表格方法中的简表没有表题,只列出竖列,每个竖列所代表的触点形式统一规定,如下表所示。每个竖列内共有几个数或“×”,就代表该接触器(继电器)产品内有几个同类触点。数字代表该触点在原理图中的位置,“×”代表备而未用的触点。
| 表1机床电路图中的分区位置代号标记方法 |