2024-05-14 20:16:20 | 人围观 | 评论:

2增压器
增压器将低压的气源转换成高压的油压,再通过油管连接到油缸。 增压器分为直压式增压器、预压式增压器。
直压式增压器适用于高出力,行程短的压缸使用。
预压式增压器用于压缸行程长时。
直压式增压器
电磁阀断电,增压器和油压缸在复位位置。(下左图)
电磁阀通电,增压器和油压缸动作,冲压工件。(下右图)

预压式增压器
电磁阀2通电,空油转换筒以气压1比1转换油压移动工作压缸,走预压行程。
电磁阀1通电,待接近工件时以增压器高压油压对工件作冲压。
电磁阀1,2切断,作业完成,油压缸复位且增压器回归原始位置。

增压器使用注意事项:
增压器的安装必须保持水平。
使用液压油。
增压器必须安装高于油压缸。
增压器的动作频率必须低于每分钟6次。
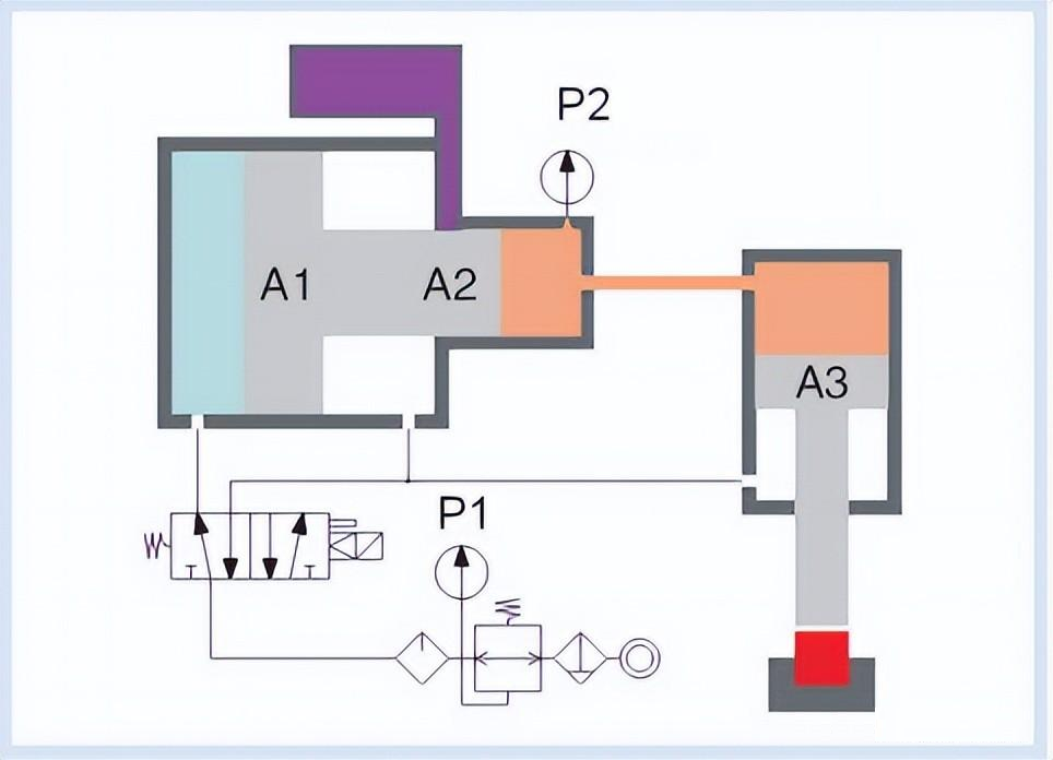
3增压缸
使用增压器对安装空间要求低,也没方向限制,但是需要配管等工作比较麻烦,所以在空间及工作方向允许的状况下,使用增压缸是比方便的选择。 如下图所示,将增压器直接设计在油压缸的后端,接上气管,就能如同一般气缸一样工作,即为增压缸。

增压缸作动说明:
1.电磁阀2动作,空油转换筒以气压1比1转换油压移动油压缸,走预压行程。
2.电磁阀1动作,待接近工件时以增压端高压油压对工件冲压。
3.电磁阀1、2断电,作业完成,油压缸复位且增压端回归原始位置。

增压缸使用注意事项:
增压缸安装必须保持注油口向上。
使用液压油。
运转前增压器的活塞轴及油缸活塞轴需缩回。
增压缸的动作频率必须低于每分钟20次。
编辑:黄飞
全站搜索