如图所示:轿厢和对重在电动机通过钢丝绳的带动下,下上下运动。轿厢(乘人的)向上,对重向下!反之亦然!
轿厢上有门(有动力可自动开关,有电动机带动),到某一楼层之后会带动外面的门(无动力,只可以通过弹簧的弹力或者重锤的重力自动关)开关!
电梯有超速,越程等等等保护!
平层是通过开关来实现的!

1.电梯的工作原理
电梯根据驱动技术分为曳引驱动、强制驱动及液压驱动等多种驱动类型,基于安全性与节能效率,目前应用最为普遍的是曳引驱动电梯。
电梯的工作原理跟我们通过辘轳的转动从水井里打水类似,水井相当于电梯井道,辘轳相当于电梯驱动主机,井绳相当于悬挂钢丝绳,水桶相当于电梯的轿厢,水桶里的水就相当于我们乘客。辘轳是通过井绳在轴上卷绕向上提水的,如出于省力的考虑,在悬吊水桶的另一侧井绳上悬吊一个平衡水桶和水重量的石块,在向上提水的过程中,水桶上升,石块相应下降,井绳不再在轴上卷绕,由井绳与轴之间的摩擦力平衡井绳所受两侧的重量差,这就是摩擦曳引驱动式电梯的运行原理。目前在用的电梯基本上都是曳引式电梯,悬挂钢丝绳一侧悬吊轿厢,另一侧悬吊平衡用的对重装置,基于安全和经济节能的考虑,平衡重量通常为轿厢重量加上满载荷重量的40%至50%。
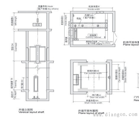
电梯构造之机房
1.曳引机:它是由电动机、制动联轴器、制动器、减速器、曳引轮、底座、光电码盘等零件组成的,主要功能是拖动电梯的升降。
2.曳引钢丝绳及端接装置:主要用来承受电梯的悬挂重量及反复拉伸。
3.导向轮和反绳轮:主要是用来将轿厢曳引到相应的曳引机或承重梁上。
4.控制柜:用于控制接触器、继电器、电容等供电设备的数据控制。
5.限速器:用于控制电梯速度的保护装置。

电梯构造之井道
1.导轨:对电梯轿厢进行定向地导向。
2.导靴:配合导轨使用,让轿厢能够沿着导轨方向进行定向移动。
3.缓冲器:当电梯突然失重时,能保护轿厢的掉落速度得到一定的缓冲。
4.随行电缆:连接所有开关信号、机房控制柜、轿内按钮的连接装置。

电梯构造之轿厢
1.轿厢架:主要用来承重厢体。
2.轿厢操作箱:含有操作盘、楼层显示器等设置,主要供乘客使用。
3.安全铣:配合限速器一起限制电梯急速下降的速度。
4.超载与称载装置:限制电梯内的超载。

电梯构造之层站
1.层门:供乘客们方便地进出电梯。
2.梯层显示器:显示楼层数。
3.层站呼梯按钮:供乘客指示上下梯。

电梯的工作原理介绍
通过上面对电梯的每个构造介绍,大家可以知道,电梯是通过箱内的钢丝绳带动上下运动的。当乘客在电梯内设置好停靠层数时,轿厢里的电动机会带动外面的门,让外面门内的弹簧装置将门自动弹开,而这也就是人们常看到的电梯停靠现象。

全站搜索