| 旋转特征是具有回转中心,而且通过轴线的剖面关于轴线严格对称的特征。常用于构造回转体零件,旋转体零件的创建和拉伸特征相似,旋转特征的特征参数及操作要点见表1。 |
| 表1 旋转特征的特征参数及操作要点 |
 |
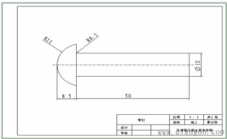
| 例1:建立标准件半圆头铆钉GB863.1-86-12×50“公称直径d=12mm 长度l=50mm 材料为ML2 不经过表面处理”,如图2。 |
 |
| 图2 半圆头铆钉工程图 |
(1)新建一个文件 ,类型为零件,子类型为实体,模板为mmn_part_solid。 (2)单击旋转工具 ,弹出操控板,单击“放置”|“定义”,如图3。 |
 |
| 图3 操控板“放置”|“定义” |
| (3)弹出“草绘”对话框,移动鼠标至绘图区,选择草绘平面FRONT,接受系统默认的参照,点击“草绘”,如图4。 |
 |
| 图4 草绘平面的选择 |
(4)进入草绘模式下,绘制铆钉的旋转中心线及截面图,单击确定 ,如图5。 |
 |
| 图5 草绘特征截面 |
(9)在操控板中,输入旋转角度360,单击“预览” |“确定” ,如图6。 |
 |
| 图6 操控板中定义旋转角度 |
| (6)完成后的造型如图7。 |
 |
| 图7 半圆头铆钉实体造型 |
注意:⑴.草绘旋转特征截面时,其截面必须全部位于旋转中心一侧,并且截面必须是封闭的,如果打开目的管理器,系统会自动标注截面尺寸,但此时的尺寸标注及不合理,需要使用标注命令自行标注,封闭环遵循“实―空―实”。 ⑵.旋转特征必须有一条绕其旋转的中心线。 ⑶.若草绘中使用的中心线多于一条,该软件将自动选中草绘的第一条中心线作为旋转轴,除非用户另外选取,其中心线必须位于用户选取或创建的平面内。 ⑷.实体特征的截面必须是封闭环的,而曲面的特征截面可以是开口环的。 说明:利用“旋转”,完成“曲面”、“薄壁”和“切减材料”与“拉伸”类似。 |
-
标签: