| 拉伸特征是由截面草绘图经过拉伸而成,它适合于构造等截面的实体特征,拉伸特征的特征参数及操作要点见表1。 |
| 表1 拉伸特征的特征参数及操作要点 |
 |
| 例1:利用“拉伸”工具,建立标准件“公称直径d=8mm 长度l=30mm 材料为35号钢 热处理硬度28~38HRC 表面氧化处理A8×30型圆柱销”,如图1。操作方法如下: |
 |
| 图1 圆柱销工程图 |
(1)单击“拉伸”工具 ,弹出操控板,单击“放置”|“定义”,如图2。 |
 |
| 图2 操控板“放置”|“定义” |
| (2)弹出“草绘”对话框,移动鼠标至绘图区,选择草绘平面RIGHT,接受系统默认的参照,点击“草绘”,如图3。 |
 |
| 图3 草绘平面选择 |
| (3)进入草绘模式下,绘制销的截面图,单击确定 ,如图4 |
 |
| 图4 草绘特征截面图形 |
(4)在操控板中,选择拉伸方式 ,输入拉伸数值30,单击“预览” |“确定” ,如图5。 |
 |
| 图5 特征截面的拉伸 |
(5)单击“倒角”工具 ,弹出操控板,选择“角度×D”,输入数值,移动鼠标至绘图区,按住Crtl选择两条边线,确定,如图6。 |
 |
| 图6 倒角的建立 |
| (6)完成后的实体造型,如图7。 |
 |
| 图7 圆柱销最终实体造型 |
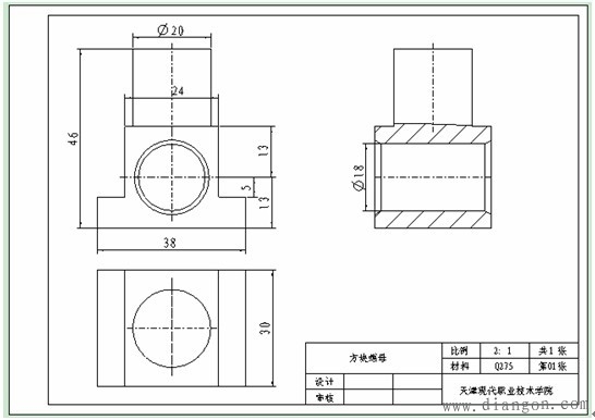
| 例2:建立如图8“方块螺母” |
 |
| 图8 方块螺母工程图 |
加工工艺分析:据工程图所示,该零件的基准是长为38的底面,故先加工底座,再加工直径为20的圆柱,要保证零件的高度,最后加工孔,要保证孔的定位基准。 (1)创建底座。单击“拉伸”工具 ,弹出操控板,单击“放置”|“定义”。弹出“草绘”对话框,移动鼠标至绘图区,选择草绘平面FRONT,参照平面为TOP,方向为顶部,点击“草绘”,绘制特征截面,生成底座,如图9。 |
 |
| 图9 底座的造型 |
| (2)创建叠加圆柱,方法同前。注意:选择草绘平面为“曲面F5”,接受系统默认的参照。生成叠加圆柱,如图10。 |
 |
| 图10 叠加圆柱的造型 |
(3)创建孔,首先注意在操控板中选择切减材料 ,其他造型方法同前。重新定义草绘平面及参照,生成孔,如图11。 |
 |
| 图11 切减孔的造型 |
| 说明:附加操控板拉伸方式及切减材料方向 |
 |
| 例3:建立如图14拉伸曲面 |
 |
| 图14 拉伸曲面 |
在建立曲面时,与拉伸实体的建立不同的是在操控板中,选择曲面工具 ,其他操作方法与其他零件的创建方法类似:若要建立封闭环的曲面,在操控板中单击“选项”|“封闭端”,同时可以根据需要改变拉伸的方向以及深度,如图15。 |
 |
| 图15 曲面封闭 |
若要建立薄板零件实体,在操控板中,选择薄壁工具 ,如图16。 |
 |
| 图16 薄壁 |
| 注意:拉伸特征的草绘截面可以是封闭的,也可以是开口,但其拉伸特征处于第一特征时,其截面图形必须封闭,如果是开口截面,其开口处线段点必须与零件模型的已有边线对齐,草绘截面内允许多个封闭环的存在,系统将以“实-空-实”的原则建立特征。 |
-
标签: