2023-03-03 11:25:05 | 人围观 | 评论:
随着我国经济形势的飞速发展、 国际市场竞争的日趋激烈, 各行各业都面临着严峻的考验。如何提高企业的管理水平, 如何降低生产成本以提高生产效率, 成为一个企业兴衰存亡的关键。其中, 能源消耗是所有企业生产成本的一项重要指标, 所以正确、 合理地使用能源就成为企业管理的重要内容。其中蒸汽是各生产企业的重要能源之一, 有的直接参与化学反应, 但多数是用其热能。所以企业在谈论节能降耗一般会先想到 “蒸汽” 。
1、 测量蒸汽流量仪表的分类及选择
目前,测量蒸汽流量的仪表主要分为涡街和差压(孔板为主) 两大类。蒸汽流量测量在上世纪 80 年代以前普遍采用标准孔板流量计, 但从流量仪表发展状况来看, 孔板流量计尽管其历史悠久、 应用范围广, 人们对它的研究也zui充分, 实验数据zui完整, 但用标准孔板流量计来测量蒸汽流量, 它仍存在一些不足之处: 其一, 压力损失较大; 其二, 导压管、 三组阀及连接头容易泄漏; 其三, 量程范围小, 一般为 3: 1, 对流量波动较大易造成测量值偏低。而涡街流量计具有结构简单, 变送器直接安装于管道上,克服了管路泄漏现象。 另外, 涡街流量计的压力损失小, 量程范围宽, 对饱和蒸气测量量程比可达30: 1。 因此, 随着涡街流量计测量技术的成熟, 涡街流量计在蒸汽流量检测中的应用比例逐年增大。
蒸汽是比较特殊的介质,有饱和及过热两种状态。随着工况 (如温度、 压力) 的变化, 过热蒸汽经常会转变成为饱和蒸汽 (如下图)

图中的纵坐标和横坐标分别为 (水)蒸汽的压力和温度值。图中的曲线称作饱和曲线。曲线上的点为饱和状态的蒸汽参数值,饱和曲线以上部分为过热蒸汽, 以下部分为液态水。
由上图可以看出饱和蒸汽的温度和压力值是一一对应的,即当饱和蒸汽的温度或压力有其中一值确定,另一值也就可以确定了。 例如: 150℃的饱和蒸汽对应的压力值为0.476MPa。绝压为 0.6Mpa的饱和蒸汽对应的温度为 158.94℃。而过热蒸汽的温度和压力并不一一对应, 在图中是在饱和曲线以上的区域。例如: 150℃的蒸汽当其压力值大于 0.476Mpa 时,就称其为过热蒸汽, 只是过热度不同。压力值等于 0.476MPa 时, 称为饱和蒸汽。
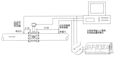
2、 蒸汽流量计量中的温度压力补偿
目前, 我国对蒸汽的计量记录及结算值的单位基本上是质量流量, 即吨或公斤。而蒸汽流量计测量值均是体积流量, 即立方米。这就需要实时采集蒸汽的温度和压力, 在积算仪或计算机中计算出密度进行补偿。饱和蒸汽的温度和压力值是一一对应的, 因而单独通过测压力或测温度都可以对饱和蒸汽进行密度补偿。而过热蒸汽的温度和压力并不一一对应, 过热蒸汽的密度补偿必须同时测其压力和温度。以测量过热蒸汽为例, 使用涡街流量计时应安装压力变送器和温度传感器采集压力和温度进行补偿计算(如下图) 。

另外, 干蒸汽在长距离输送过程中, 会因热量损失而出现部分凝结, 导致蒸汽干度降低, 变成湿蒸汽。 蒸汽的温压状态在饱和曲线以下区域时我们就不能称其为蒸汽而是水了。 饱和蒸汽实际上是水分子由液态转变为气态的临界值, 饱和蒸汽由于温度或压力的改变部分气态水分子转变为液态, 即蒸汽中携带了部分的水时就称其为 “湿蒸汽” , 完全气态水分子称为 “干蒸汽” 。(1)湿蒸汽就属性而言是两相流体, 但在湿度不高的情况下, 可将其当作单相流体, 并用一般的流量计进行测量。
(2) 蒸汽严重带水, 将使涡街流量计出现 “漏脉冲”现象, 更严重时, 涡街流量计会完全没有脉冲输出。
(3) 对于蒸汽严重带水影响涡街流量计正常测量的情况, 常用的处理方法是在涡街流量计上游的适当位置充分疏水。 合理布置疏水器, 保持蒸汽的过热度, 使湿蒸汽的干度尽量提高, 能保证涡街流量计正常测量。
3、 涡街流量计在蒸汽计量中的优点
(1) 结构简单而牢固, 无可动部件, 可靠性高, 长期运行十分可靠。
(2) 安装简单, 维护十分方便。 不像差压式流量计那样再另装导压管和固定支架, 即节省了安装费用, 又减少了故障点, 还不用采取保温措施。
(3) 检测传感器不直接接触被测介质, 性能稳定, 寿命长 (针对于内藏式) 。
(4) 输出是与流量成正比的脉冲信号, 无零点漂移,精度高。也可根据需要使其输出 (4~20) MA 信号。
(5) 测量范围宽, 量程比可达 1: 10 或更高。这一点对一些用汽很不平衡的用户的蒸汽计量很有作用。
(6 ) 压力损失较小, 运行费用低, 具有一定的节能意义。
4、 涡街流量计测量蒸汽的局限性分析
(1)对直管段的要求较高, 一般起码要求前直管段在 15D 左右, 后直管段在 5D 左右。
(2 ) 蒸汽的水击容易造成探头及旋涡发生体的损伤。
(3 ) 不适合安装在管线振动较大或干扰较强的地方。
(4) 所测介质温度不能过高, zui高不能高于 400 度。
(5) 现在大管径的流量表稳定性欠佳 (大于DN250MM)
涡街流量计在使用后克服了孔板流量计的诸多不足, 对饱和蒸汽的测量更准确、 更稳定,维护方便。但值得注意的是,由于孔板测量技术发展成熟, 有相应的国家标准和国际标准作支持, 本身结构简单、 造价低, 耐高温性能和抗振性能好,所以对于大中型管道,如DN200mm 以上管道, 多是采用孔板差压式流量计, 尤其是高压过热蒸汽, 全部是采用孔板差压式流量计。对于中小管道, 涡街流量计使用数量越来越多。另外由于高温及振动对涡街传感器的正确使用十分不利, 除采取必要的耐温、 减振措施外, 在实际使用时, 应尽量安装于振动小通风好的位置。如发现出现干扰的虚假信号, 应停止运行并检查原因予以排除。另外, 测量饱和蒸汽的流体流速不得低于 5m/s, 否则, 流量计量值偏低。除上述以外, 还应注意蒸汽计量仪表的定期检修。由于其长期处在高温、 高压的水蒸汽环境中, 很容易造成表件损坏、锈蚀、 杂质阻塞等, 因此需要经常维护和定期检修。
全站搜索